1/4

マイステイズプレミアレジデンス浜松町

〒105-0013 東京都港区浜松町1-8-5 | 03-3432-2726

75 m2 / 2 ルーム / 1 バスルーム / 2 トイレ

施設設備

客室

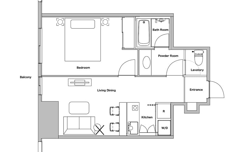
1 ベッドルーム (1LDK)
50 m2 / 1 ルーム / 1 バスルーム / 1 トイレ

プレミア
1 ベッドルーム

¥465,000 /30泊

プロモーション料金(※)-
スタジオ

¥450,000 /30泊

プロモーション料金(※)¥435,000 /30泊
スタンダード
2 ベッドルーム

¥552,000 /30泊

プロモーション料金(※)-
1 ベッドルーム

¥435,000 /30泊

プロモーション料金(※)-

ロケーション

〒105-0013 東京都港区浜松町1-8-5
03-3432-2726
近隣施設
最寄り駅からのアクセス
主要空港からのアクセス
主要駅からのアクセス

お問い合わせ

コーポレートセールス

03-6866-4343

平日9:00~18:00